Adapting – Sommersemester 2024 / Akademie der bildenden Künste
1/2/3 gemeinsamer Lageplan und Umgebungsmodell
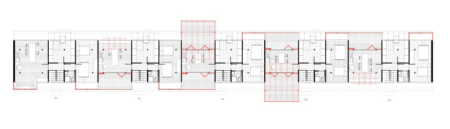
4/5 Studierende: Maria Fuchs, Madeleine Rathberger, Ludmilla Zacherle, 2.Semester
6 Studierende: Luca Gläser, Melody Arheger, 2.Semester
Adapting – Sommersemester 2024 / Akademie der bildenden Künste
1/2/3 gemeinsamer Lageplan und Umgebungsmodell
4/5 Studierende: Maria Fuchs, Madeleine Rathberger, Ludmilla Zacherle, 2.Semester
6 Studierende: Luca Gläser, Melody Arheger, 2.Semester